Час серверу:




Київська область, Києво-Святошинський район, с. Чайки, вул. Коцюбинського, буд. 9, корп. 8, квартира № 327
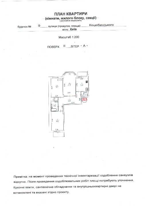
житлова квартира № 327, загальною площею 100,7 кв.м., розташована на 2 поверсі одинадцяти поверхового будинку та складається з трьох кімнат житловою площею 58,3 кв.м., у тому числі 1-а кімната 19,0 кв.м., 2-а кімната 18,1 кв.м., 3-я кімната 21,2 кв.м., кухня площею 12,8 кв.м., вбиральня (сполучена) площею 5,5; 2,3 кв.м., коридор площею 18,0 кв.м., комора площею 2,0 кв.м., квартира обладнана балконом 30% 0,9; 0,9 кв.м., висота приміщень 2,74 м., що знаходиться за адресою: Київська область, Києво-Святошинський район, с. Чайки, вул. Коцюбинського, буд. 9, корп. 8.
Підстави виникнення права власності на майно: рішення про державну реєстрацію прав та їх обтяжень (з відкриттям розділу), індексний номер: 29985222 від 09.06.2016, приватний нотаріус Потапов Михайло Юрійович, Києво-Святошинський районний нотаріальний округ, Київська область (технічний паспорт виданий 11.08.2015 КП «Київське міське бюро технічної інвентаризації та реєстрації права власності на об’єкти нерухомого майна»).
заборона на нерухоме майно, № запису про обтяження: 15015080, підстава іпотечний договір, серія та номер: 190, виданий 31.01.2014, видавник приватний нотаріус Київського міського нотаріального округу Гунько І.І.;
іпотека, реєстраційний номер обтяження 15058381, підстава договір іпотеки № 190, виданий 31.01.2014, видавник приватний нотаріус Київського міського нотаріального округу Гунько І.І.;
арешт нерухомого майна, номер запису про обтяження 40819537, підстава постанова про арешт майна боржника від 03.03.2021 № 64665228, видавник приватний виконавець виконавчого округу м. Києва Боднар Д.В.;
арешт нерухомого майна, номер запису про обтяження 33038365, підстава постанова про арешт майна боржника від 28.08.2019 № 59527534, видавник Подільський районний відділ державної виконавчої служби у місті Києві Центрального міжрегіонального управління Міністерства юстиції (м. Київ);
арешт нерухомого майна, номер запису про обтяження 38086923, підстава постанова про арешт майна боржника від 09.09.2020 № 62951347, видавник Києво-Святошинський районний відділ державної виконавчої служби Центрального міжрегіонального управління Міністерства юстиції (м. Київ);
арешт нерухомого майна, номер запису про обтяження 38211552, підстава постанова про арешт майна боржника від 27.07.2020 № 62662783, видавник приватний виконавець виконавчого округу м. Києва Жданович В.М.;
арешт нерухомого майна, номер запису про обтяження 28040817, підстава постанова про арешт майна боржника від 13.09.2018 № 57205979, видавник відділ примусового виконання рішень Департаменту державної виконавчої служби Міністерства юстиції України.
Список учасників:
Немає учасників
Свириденко Віталій Михайлович (тел. 044 227 79 44, 044 249 23 14)